Referência: LCL1960 - Lisboa, Lisboa Arrendamento
- 2.850,00€ / mês
- 166m²
- Loja
- PENHA DE FRANÇA, Lisboa
Descrição
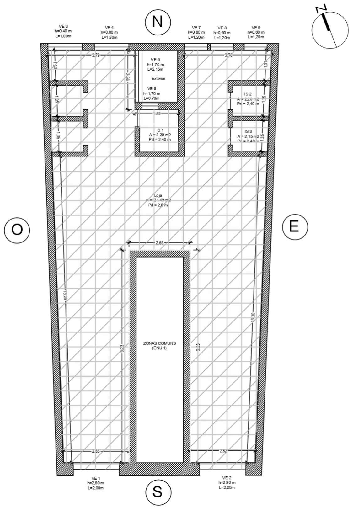
Loja situada na Rua Morais Soares, em Lisboa, totalmente renovada, pronta a iniciar atividade. Com 128,95 m² de área útil, apresenta uma disposição funcional em U, duas montras com exposição solar a sul, proporcionando excelente luminosidade natural e visibilidade comercial. O espaço dispõe de 2 instalações sanitárias e 3 divisões de arrumação e acesso a um pequeno logradouro, sendo particularmente adequado para estúdio de exercício, clínica, escritório, centro de formação ou comércio especializado.
Envolvente
Inserida numa das artérias mais dinâmicas da zona de Arroios/Penha de França, beneficia de elevado fluxo pedonal e rodoviário, forte presença de comércio tradicional, serviços e transportes públicos nas imediações. Uma localização estratégica para quem procura visibilidade, centralidade e conveniência no coração de Lisboa.
Características
| Preço | 2.850,00€ / mês |
| Área | 166m² |
| Tipologia | Loja |
| Certificação energética |
B |